Bab Al Qasr Resort Residence
Bab Al Qasr Resort Residence at Masdar City is the…
From 1,280,000 AED
Saadiyat Island
For Sale
From 2,820,000 AED





The Source II: A Luxurious Residential Complex in Saadiyat Grove
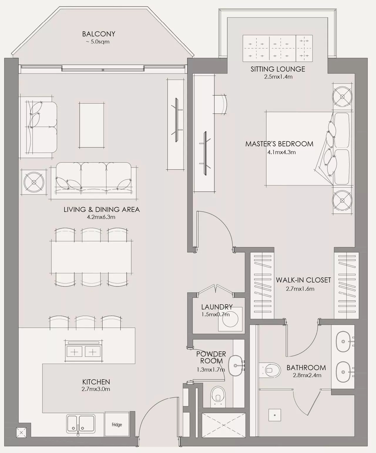
Imagine living in a residential complex that combines elegant design with premium amenities. That’s exactly what The Source II by Aldar Properties PJSC offers. Nestled in the heart of Saadiyat Grove on Saadiyat Island, this residential complex is the epitome of luxury and comfort.
Splendid Living Spaces
The Source II is an architectural marvel with a structure housing residential units. Buyers have the opportunity to select from various sizes of apartments.
Furthermore, the apartments boast of:
– Panoramic windows for ample sunlight
– Private balconies with views of the emirate’s new landmark — Zayed National Museum
– Laundry rooms and built-in wardrobes in bedrooms
– Maid’s room in some two-bedroom and all three-bedroom residences
Prime Location
The location of The Source II is noteworthy as it offers residents quick access to the most sought-after locations around the Emirates. You are never far away from the bustling city life, yet you can enjoy the tranquility that Saadiyat Island offers.
A Range of Housing Options
The Source II caters to a variety of residential needs. The project includes the following unit types:
1 Bedroom Apartment
2 Bedroom Apartment
3 Bedroom Apartment
A Wealth of Amenities
Residents of The Source II will enjoy a wealth of prestigious amenities, including:
– State-of-the-art gymnasium
– Swimming pool
– Kids play area
– Landscaped gardens
– 24-hour security and concierge service
Project Status and Delivery
The Source II is currently under construction with an expected delivery date in Q4-2026. The careful blend of design, location, and amenities make The Source II not just a residential complex, but a lifestyle destination.
Conclusion
The Source II by Aldar Properties PJSC is more than just a residential complex. It’s a community designed for those who appreciate the finer things in life. From its prime location on Saadiyat Island to its wide range of housing options and luxury amenities, The Source II is an ideal place to call home.
Bab Al Qasr Resort Residence at Masdar City is the…
From 1,280,000 AED
Gharbi 2 Residences is an extraordinary project offering a wide…
From 1,155,000 AED
Owning a home is a keystone of wealth… both financial affluence and emotional security.
Suze Orman